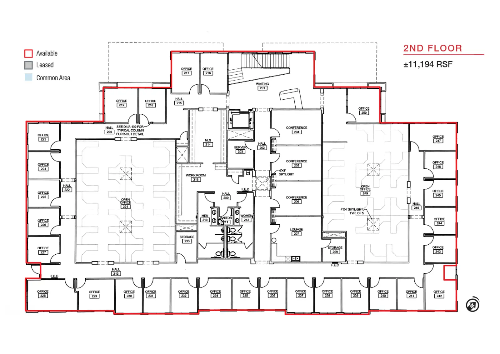
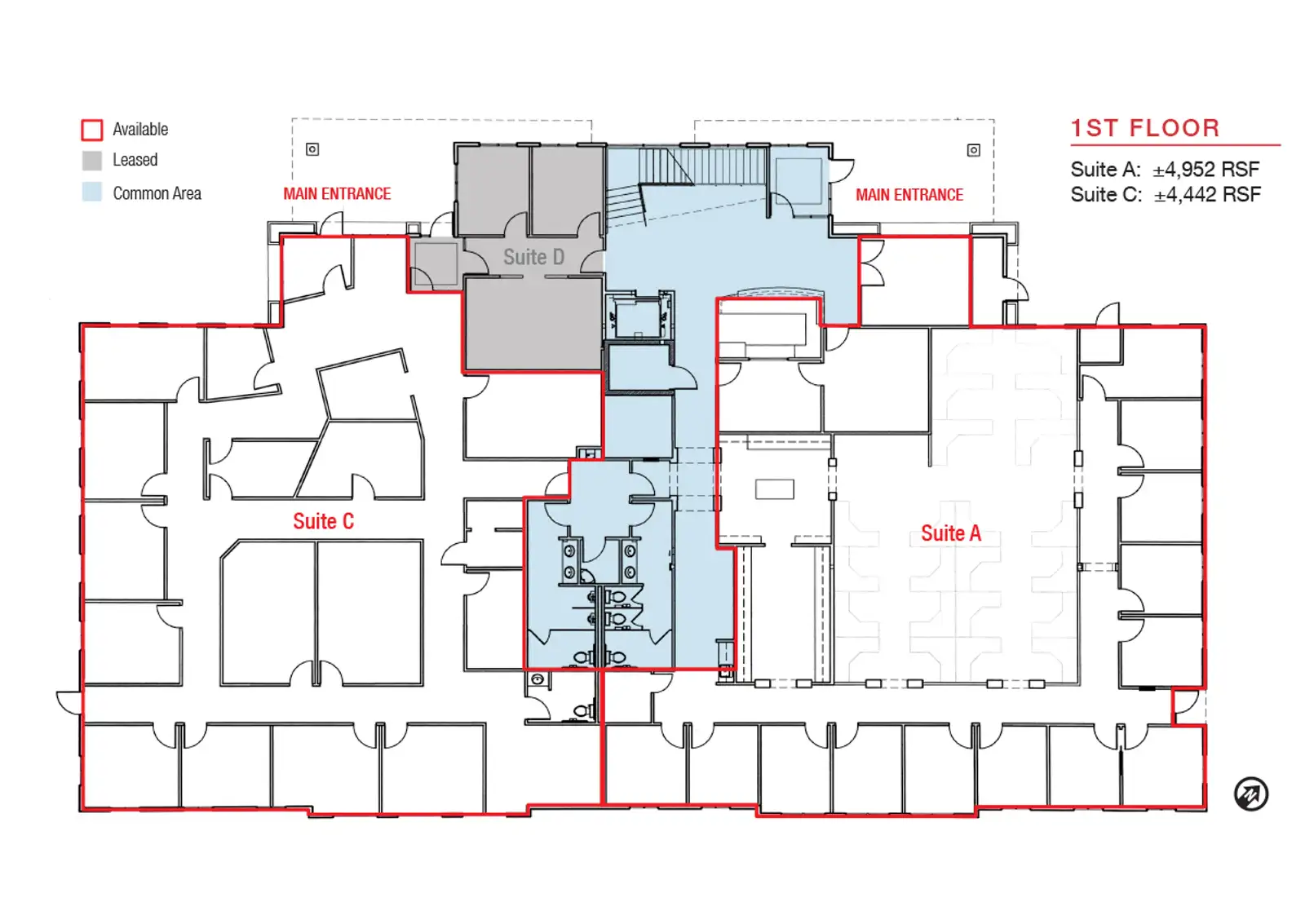
Fully Leased
First-Class Office Space Available
500 Unser Blvd SE, Rio Rancho, NM 87124
1 / 10

Overview
This listing is no longer available. Still interested? Use the form below to find out more. Do you have a membership? Click here to login.
Contact Brokers
Fully Leased
Office
- Off Market Date
- 11/15/2024
- Created
- 11/03/2023
- Updated
- 11/15/2024
- Listing ID
- ae1644fe
- Parcel APN
- 1011069385132








