Active
3472 Main St NE
3472 Main St NE, Los Lunas, NM 87031
1 / 8

Overview
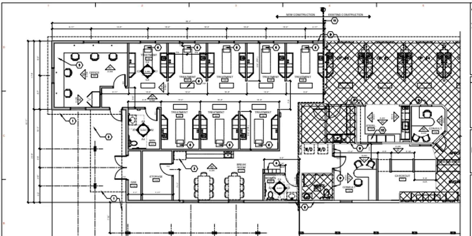
Prime Investment Opportunity: Standalone Dental Practice with Triple Net Lease
Location: 3472 Highway 47, Los Lunas, NM
Key Features:
- Extensive 2018 Build-Out: Doubled the building's size, incorporating state-of-the-art upgrades and modern decor.
- Enhanced Flooring: All flooring upgraded to contemporary, durable materials.
- Dental Operatories: 14 fully equipped dental operatories designed for optimal efficiency and patient care.
- Private Consult Areas: Two separate private consult rooms for confidential and personalized patient discussions.
- Staff Lounge: Large, well-appointed lounge area for staff relaxation and collaboration.
- Spacious Waiting Room: Generous waiting area designed to ensure patient comfort and ease.
- Doctors Lounge: Expansive lounge with workspace for up to five providers, complete with ample storage space.
- Inviting Atmosphere: An open and welcoming environment.
- Flexible Additional Rooms: Additional rooms offer versatility for private training studios, wellness rooms, or office spaces for staff.
- Prime Location: Situated in the heart of Los Lunas, with easy access to parking and public transport options.
- Triple Net Lease: Secure investment with a triple net lease (NNN) with 8 years remaining, ensuring consistent income with tenant responsibility for property taxes, insurance, and maintenance.
Valuation Summary:
- Asking Price: $1,650,000
- Cap Rate: 9%
Attachments
For Sale
Healthcare
Investment
- Sale Price
- $1,650,000
- Price Per SF
- $306.6/SF
- Cap Rate
- 9.01%
- Building Size
- 5,381 SF
- Acres
- 1.11 ac
- Zoning
- C-1 Neighborhood Commercial Zone
- Gross Income
- $148,655
- Net Operating Income
- $148,655
- Tenant
- Dental Practice
- Floors
- 1
- Year Built
- 2018
- Average Occupancy Rate
- 100%
- County
- Valencia
- Created
- 02/10/2025
- Updated
- 10/09/2025
- Listing ID
- 988e4fca
- Parcel APN
- R086281
Contact Broker
Property Area Insights
presented by Placer.ai






