Active
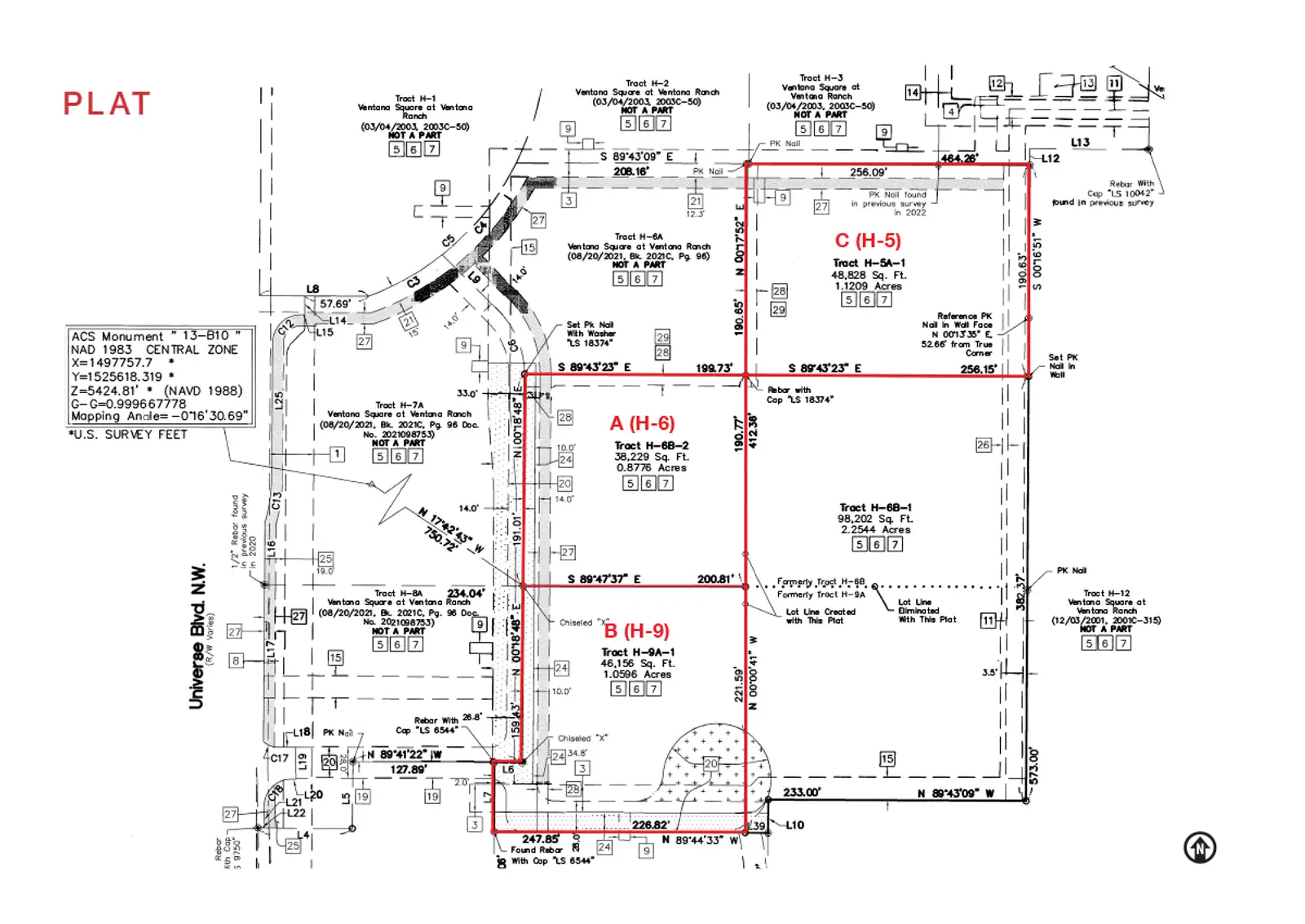
Pad C-Retail Pad Sites in a High-Growth Area
NEQ Paseo del Norte & Universe Blvd NW, Albuquerque, NM 87114
1 / 16

Overview
- Positioned at key, signalized intersection with almost 39,000 cars per day
- Adjacent to Strip/Convenience Center which ranks in the top 17% nationally
- high-growth, high-income area with a demand for retail and services
- Surrounded by new retail construction such as Dion's , McDonald's and Dutch Bros.
- Near multiple schools with significant student traffic
- Pylon signage available along Paseo del Norte
- Level site ready for development
- All utilities to the site
- $12.00/SF
Attachments
For Sale
Land
Secondary Uses: Retail
- Sale Price
- $585,446.4
- Price Per Acre
- $522.7K/ac
- Acres
- 1.12 - 3.06 ac
- Zoning
- MX-M
- Zoning Description
- Mixed Use Moderate Intensity
- Submarket
- West Mesa
- Property Status
- Speculative
- County
- Bernalillo
- Created
- 2022-08-11
- Updated
- 2025-10-21
- Listing ID
- 785311c5
- Parcel APN
- 101006506306030614
Contact Brokers
Property Area Insights
presented by Placer.ai














