Active
Pad B-Retail Pad Sites in a High-Growth Area
NEQ Paseo del Norte & Universe Blvd NW, Albuquerque, NM 87114
1 / 16

Overview
- Positioned at key, signalized intersection with almost 39,000 cars per day
- Adjacent to Strip/Convenience Center which ranks in the top 17% nationally
- high-growth, high-income area with a demand for retail and services
- Surrounded by new retail construction such as Dion's and Dutch Bros.
- Near multiple schools with significant student traffic
- Pylon signage available along Paseo del Norte
- Level site ready for development
- All utilities to the site
Attachments
For Sale
Land
Secondary Uses: Retail
- Sale Price
- $646,430.4
- Price Per Acre
- $286.7K/ac
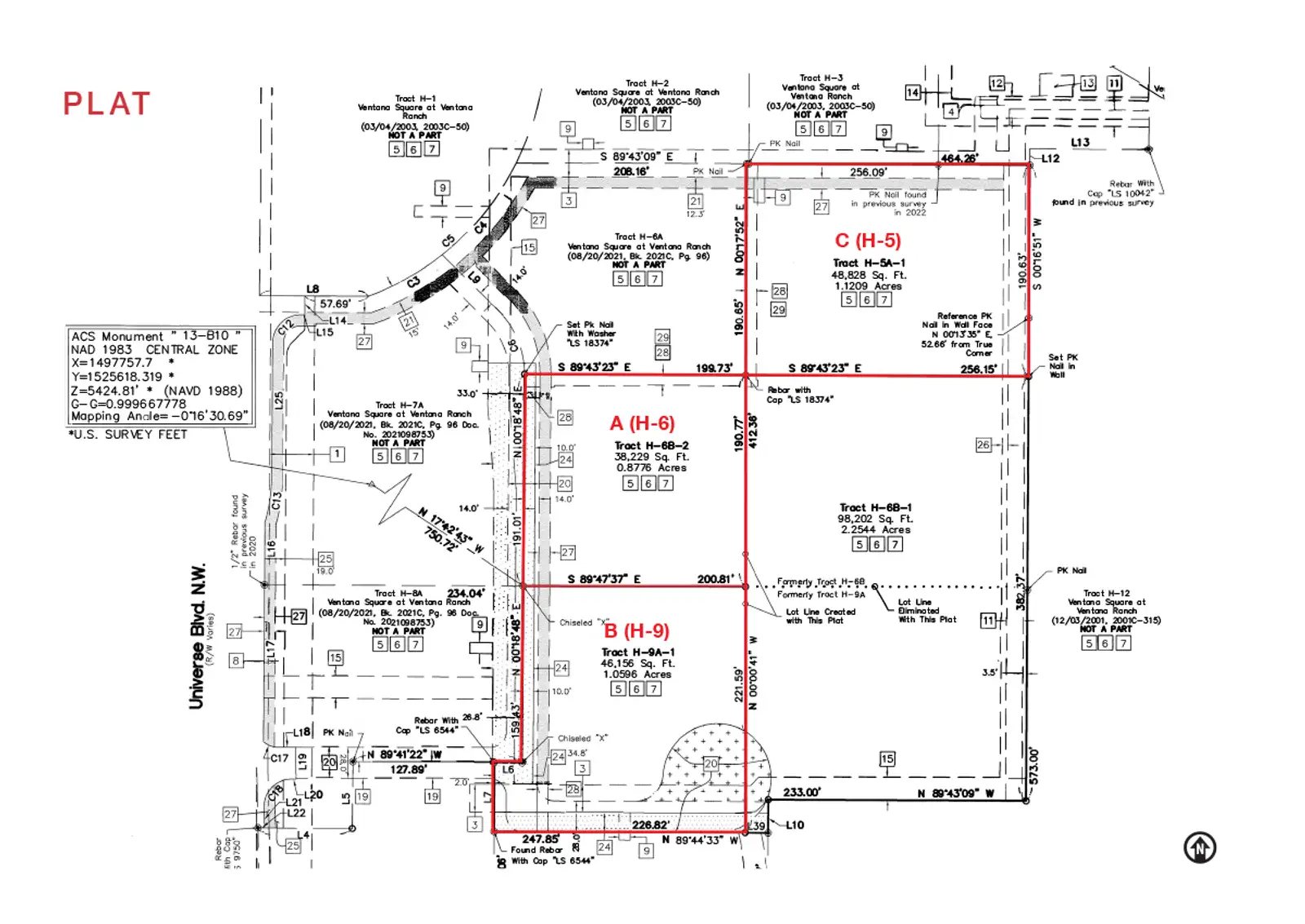
- Acres
- 2.2544 - 3.06 ac
- Zoning
- MX-M
- Zoning Description
- Mixed Use Moderate Intensity
- Submarket
- West Mesa
- Property Status
- Existing
- County
- Bernalillo
- Created
- 2022-08-11
- Updated
- 2025-10-21
- Listing ID
- 7825f3e8
- Parcel APN
- 101006506306030614
Contact Brokers
Property Area Insights
presented by Placer.ai














