Active
Affordable Warehouse Spaces
215 Rossmoor Rd SW, Albuquerque, NM 87105
1 / 6

Overview
- 12’ – 20’ warehouse clear height
- 5 grade-level overhead doors*
- 1 dock-high overhead door*
- 3-phase, 480 volt, 250 Amp power
- 24/7 on site security
- Secure yard space available
*Number of grade-level and dock-high doors vary by unit
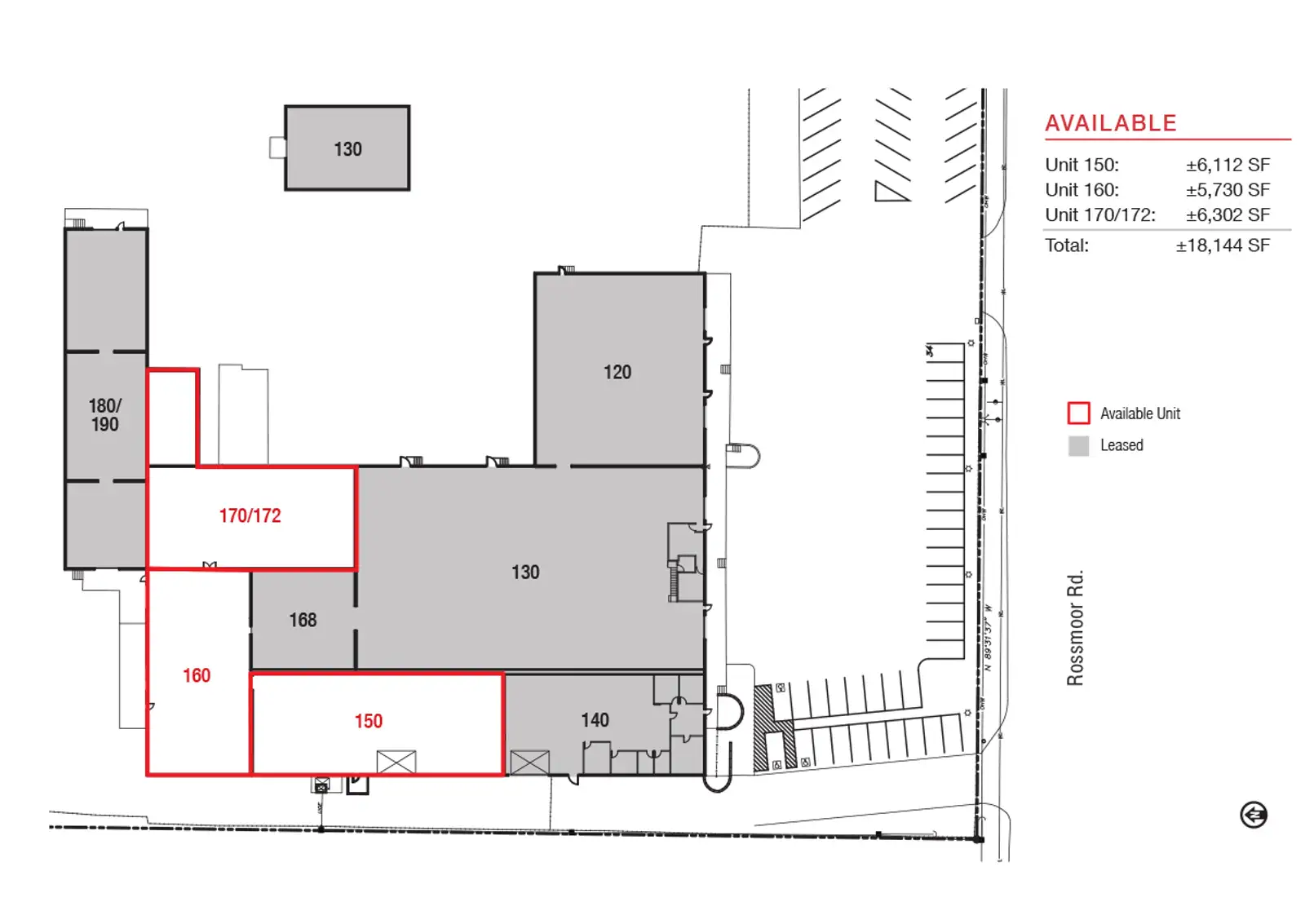
Lease Spaces
| Name | Rate | SF |
|---|---|---|
| Unit 170/172 | $5.5 /SF/Year | 6,302 SF |
| Unit 160 | $5.5 /SF/Year | 5,730 SF |
| Unit 150 | $5.5 /SF/Year | 6,112 SF |
Attachments
Links
For Lease
Industrial
Secondary Uses: Warehouse/Office
- Lease Rate
- $5.5 SF/year
- Available SF
- 5,730 - 6,302 SF
- Total Available SF
- 18,144 SF
- Acres
- 4.6536 ac
- Zoning
- M-2
- Zoning Description
- HEAVY MANUFACTURING ZONE
- Lease Type
- NNN
- Signage
- On Building
- Submarket
- South Valley
- Property Use Type
- Vacant/Owner-User
- Drive-In Number
- 2
- Clear Height
- 12' - 20'
- Yard
- Yes
- Power
- 480 V @ 250 A, 3 Phase
- County
- Bernalillo
- Created
- 02/26/2025
- Updated
- 12/10/2025
- Listing ID
- 6e750283
- Parcel APN
- 101305443102940802
Contact Brokers
Property Area Insights
presented by Placer.ai




