Active
Northeast Heights Office/Retail Space
2547 Wyoming Blvd NE, Albuquerque, NM 87112
1 / 18

Overview
- Split-level space in the Lynn Building
- Recently updated
- Refrigerated air
- Ample parking
- Great visibility from Wyoming Blvd.
- Seller financing available
Attachments
For Sale
Office
Retail
- Sale Price
- $390,000
- Price Per SF
- $204.7/SF
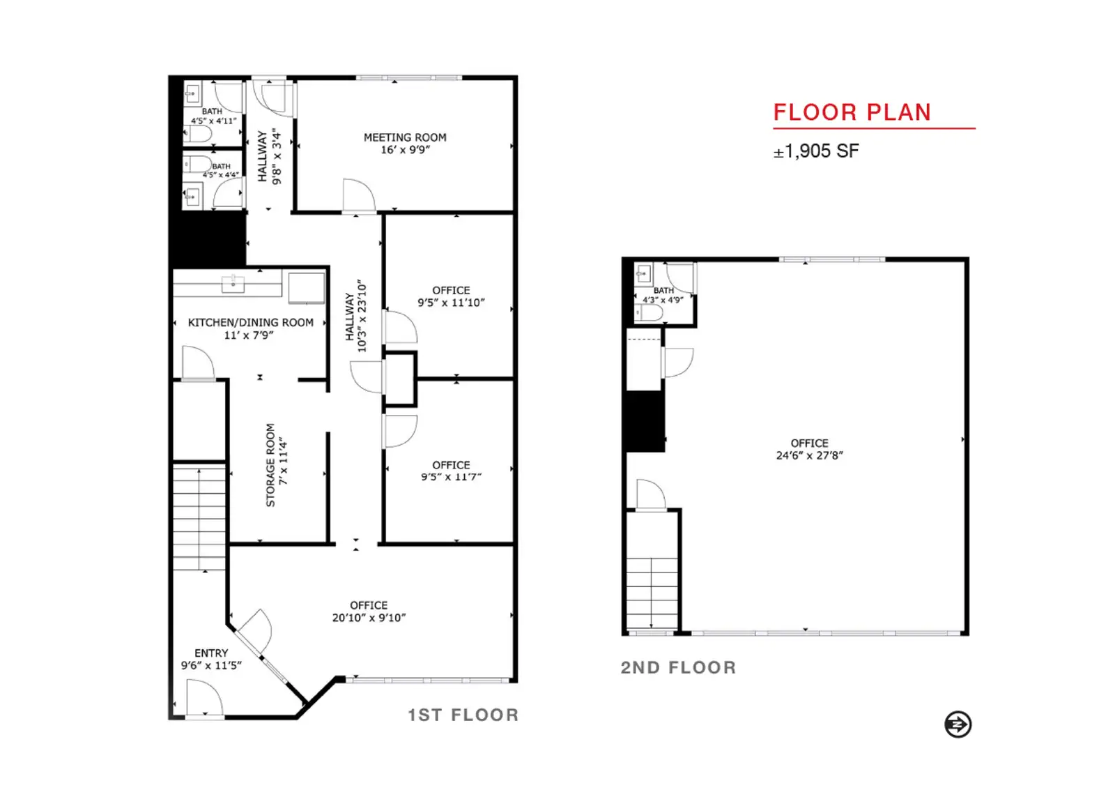
- Building Size
- 1,905 SF
- Acres
- 0.0868 ac
- Zoning
- MX-T
- Zoning Description
- Mixed Use Transition
- Building Name
- Lynn Building
- Floors
- 2
- Submarket
- Northeast Heights
- Vehicles Per Day
- 34,500 VPD
- Is End Cap
- Yes
- County
- Bernalillo
- Listed
- 02/06/2026
- Updated
- 02/12/2026
- Listing ID
- 63df71fb
- Parcel APN
- 101905952644912442
















